El pasado 1 de diciembre tuvimos la oportunidad de acudir al "BirrAJE" organizado por @ajelaspalmas en conjunto con la @cibsbymba. Consistió en un encuentro de jóvenes empresarios donde, utilizando el caso "Spotify", se analizaron algunas estrategias de dirección empresarial. Todo ello conducido por el CIO de Velorcios Group, Jorge Alonso. Tras esto, tuvimos la oportunidad de charlar y conectar con otros empresarios y emprendedores que se dieron cita allí. Toda una experiencia de networking que sin duda ha sido muy enriquecedora. Gracias a los organizadores y en especial a @cathaysa_melian por invitarnos y ser nuestra anfitriona personal. 👏👏👏
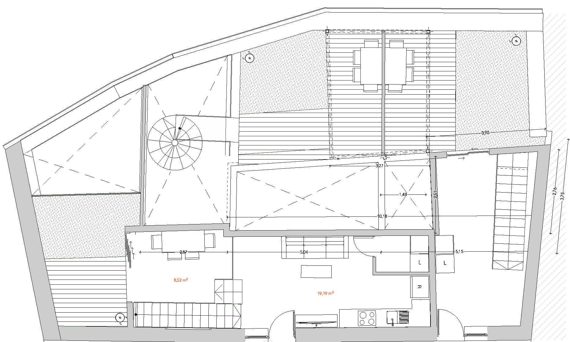
Casa A13
Este proyecto lo hemos desarrollado con mucha ilusión y está hecho completamente a medida para nuestros clientes. A los que agradecemos la oportunidad y su confianza.
Diseñamos viviendas que, cumpliendo con la normativa vigente, alcanzan las espectativas y deseos de nuestros clientes.
Nuestro propósito es construir la casa ideal para cada unidad familiar. Buscamos siempre las mejores soluciones para alinear el programa de necesidades con las exigencias técnicas y urbanísticas aplicables.
Nos importan la calidad del diseño, la funcionalidad y la eficiencia energética. Si también te preocupa de tu hogar o futuro hogar, podemos asesorarte y desarrollar proyectos de rehabilitación o de obra nueva bajo el Estándar Passivhaus.
Ven a conocernos, te explicaremos el método con el que juntos defineremos tu casa ideal.
#tucasaideal #arquitectura #vivienda #diseño #hogar #familia #mosaarquitectos
#passivhaus
La calima en Canarias es recurrente y afecta a la salud de las personas durante su paso por las Islas.
Cuando sucede en épocas de mucho calor afecta a los edificios porque dificulta la refrigeración a través de la ventilación cruzada.
Los edificios pasivos construidos y diseñados bajo el estándar Passivhaus mantienen una temperatura constante interior de confort y unos niveles de salud del aire óptimos sin necesidad de ventilar a través de las ventanas. Esto los hace idóneos frente al calima y las altas temperaturas en Canarias.
Puedes construir o rehabilitar tu vivienda bajo el estándar passivhaus y olvidarte de la calima y el calor en Canarias. Si te interesa saber más puedes consultarnos.
#Arquitectura #passivhaus #mosaarquitectos #casapasiva #eficienciaenergetica
Feliz año nuevo!! 🎉🎇
Desde Gran Canaria 🏝️ con cielo azul 🟦 y nuestros fuegos artificiales naturales 🌴
Nuestros mayores agradecimientos y deseos a todos, en especial a los que han formado parte de nuestro equipo este 2022 y a quiénes han confiado en nosotros para construir sueños.
#felizañonuevo #feliz2023 #mosaarquitectos #palmeras #tucasaideal
Vivienda unifamiliar aislada en Sta. Brígida.
Algunos clientes llegan con un programa y nos regalan la libertad de crear distintas líneas de diseño según sus gustos. Poder navegar en las distintas propuestas en 3D facilita la toma de desiciones por parte de nuestros clientes. Poder decidir y entender como van a vivir en su vivienda antes de empezar la obra evita sorpresas.
Aquí dos propuestas para vivienda en la misma parcela.
Ellos ya han elegido su favorita. ¿Cuál es la tuya?
#Arquitectura #diseño #obranueva #propuestas #mosaarquitectos #bimx #modelo3d
Proyectos a medida. Tu casa ideal.
Adaptamos tu idea a la normativa sin perder la esencia.
- Vivienda unifamiliar aislada con fachada sobre la alineación de la calle.
Un proyecto con muchos ingredientes urbanísticos y parcelarios, con premisas concretas de los promotores que hemos conseguido encajar quedando contentas todas las partes de esta primera fase, el anteproyecto.
#mosaarquitectos #tucasaideal #arquitectura #diseño #proyectoamedida #obranueva #ilusion #anteproyecto
#Sábado entretenido, descansando de PC y modelos 3D y jugando con las posibilidades de #legoarchitecture para hacer maquetas.
"Elige un trabajo que te guste y no tendrás que trabajar ni un día de tu vida" Confucio
Quizá alguien se sienta identificado con esta vivienda entre medianeras 👀
#lego #arquitectura #diseño #maqueta
Imágenes del "durante". Casi siempre vemos el antes y el después de una #reforma, pero quedan soluciones ocultas entre medias, escondidas o no, bajo las capas del "después". Soluciones igual de importantes que hacen posible la imagen final, que quedarán escondidas igual que un secreto.
#Arquitectura #obra #diseño #estructura #mosaarquitectos
Hoy hemos concluido uno de las mayores retos en nuestro trabajo hasta el momento. En el proceso de obra de actuaciones en el conjunto de las troneras de la calle Drago, en Gáldar, de interés etnografico. Se ha procedido al apeo y traslado de dos de las nueve tronera de que se compone el conjunto. Ha sido un trabajo laborioso y no falto de interés por la población de la ciudad de Gáldar. Pero todo ha salido según lo previsto. Estamos orgullosos del trabajo realizado y de los componentes del equipo de la empresa de construcción y los tecnicos del ayuntamiento. Trabajar así da gusto. ¡Entre todos lo hemos logrado!
#Arquitectura #rehabilitacion #patrimonio #direcciondeobra #exito
Contentos, muy contentos.
Porque más pronto ⏰ que tarde nos pondremos manos a la obra (y nunca mejor dicho) con este proyecto cargado de ilusión, al que le hemos puesto todas nuestras ganas y empeño para sacar adelante.💞 Y no es para menos, después de haber formado un gran equipo técnico, incluidos los propietarios 🔝, quiénes nos han cedido su sueño para que lo hagamos realidad. ¡¡Ya queda menos!! 👷🏻♂️ 👷🏻♀️ 🚜 🏗️ #Arquitectura #diseño #ampliacion #reforma #reformayampliacion #posibilidades #obra #direccióndeobra #dedicacion #inminente #sueños #ilusion #mosaarquitetura #mosaarquitectos
¡¡Comenzamos!! Inicio de las obras de actuación, traslado y reconstrucción del conjunto de las troneras.
Una obra muy interesante y compleja y, aunque no se pueda observar en el video, en la que prima la conservación de elementos del Patrimonio Histórico de Canarias.
Primer paso de esta obra con los condicionantes de las circunstancias en las que estamos viviendo. Siempre adaptándonos y trabajando con las medidas de seguridad exigidas y recomendadas.
Con muchas ganas de aprender de esta obra y sus particularidades. #Arquitectura #patrimonio #direccióndeobra #troneras
Seguimos definiendo procesos constructivos, buscando la mejor solución para cada caso.
Siempre hay un antes ✏️📐 y un después 🖥️ en este proceso.
Nosotros disfrutamos mucho del antes porque marca la diferencia en el después. ¿Y tú?
#detalles #detalleconstructivo #croquis #boceto #arquitectura #procesoconstructivo #diseño #diseñoconstructivo #mosaarquitectos
Esta es nuestra propuesta para una de las actuaciones del concurso Richard Driehaus, en Béjar: Rehabilitar el edificio del Obrador textil y convertirlo en una escuela de oficios.
Construcción tradicional propia, arquitectura protegida y patrimonio histórico claves en este concurso.
No hubo suerte esta vez pero nos quedamos con la experiencia de haber conocido una parte de la historia de nuestro país trabajando en este proyecto.
#concursodearquitectura #historia #construciontradicional #diseño #rehabilitacion #proyecto #idea #mosaarquitectos
Queremos dar las gracias a todas las personas que se interesaron por nuestro trabajo durante la feria de ENORTE que dio lugar este pasado fin de semana. Estamos muy contentos de haber recibido tantas personas con ganas de conocernos y de aprender un poquito con nosotros sobre eficiencia energética en los edificios, así como la bioconstrucción y diseño bioclimático.
También queremos agradecer la colaboración de @100x100madera, nos aportaron artículos y material de exposición para a dar a conocer materiales naturales alternativos en construcción, menos nocivos para la salud y el medio ambiente, además de ser un exelente ejemplo de construcción biopasiva.
Hemos aprendido enseñando y nos quedamos con un buen sabor de boca tras la feria, por eso agradecer a la @mancomunidad74 habernos dejado un hueco para mostrar lo que hacemos.
#arquitectura #diseño #bioconstrucción #eficienciaenergetica #mosaarquitectos #ENORTE #mancomunidaddelnorte
Desde MOSA Arquitectos te invitamos a visitar la FERIA ENORTE, que se celebrará en Gáldar a partir de hoy viernes a las 17h y hasta el próximo domingo 7, a las 15h. Tendremos un huequito ahí para mostrar nuestros trabajos y crear nuevas relaciones con la gente de la zona. Además de los stand de las empresas también habrá talleres, concierto y mucho más. ¡Vamos a sacar lo mejor de nosotros!
#feria #ENORTE #arquitecturapasiva #arquitectura #mosaarquitectos
Tejiendo el barrio de La Antigua, Béjar, Salamanca. Esta semana hemos visitado el pueblo de Béjar con el propósito de participar en el concurso de arquitectura Richard H. Driehaus con una propuesta que logre la dinamización del barrio y su ayude a la recuperación de su economía y actividad social. #mosaarquitectos #béjar #ilusion
Compartimos la publicación de @100x100madera la situación es para reflexionar.
#Repost @100x100madera
• • • • •
Echar un vistazo a este vídeo y luego preguntaros si ¿en serio nos vamos a quedar con los brazos cruzados?, ¿no tenemos que hacer algo ya para curar a nuestro planeta?! Quedan 12 años para llegar al punto de #noretorno .
Reciclar, reutilizar, usar transporte no contaminante y por supuesto apostar por la construcción #sostenible y de #emisionescero #co2 son algunas de las medidas que todos podemos hacer.
#eficienciaenergetica #cambioclimático #recicla #reutiliza
Propuesta de apartamento para dos.
Una vivienda de unos 63 metros cuadrados construidos. Un programa sencillo en el que era imprescindible un espacio de estudio tanto para trabajar como para atender clientes.
Otro aspecto importante es el aprovechamiento del espacio sin restarle importancia a cada espacio de uso y teniendo en cuenta las vistas al mar. Los espacios exteriores que nunca están de más en una vivienda, por pequeña que sea. Al tratarse de un apartamento sobre un garaje ya construido, para una pareja que se instala por primera vez en casa de sus padres, era necesaria una caja de escaleras de acceso que le diera independencia total del resto, así como la intimidad entre las dos viviendas. Muy importante que ambas familias se sientan cómodas con el cambio que experimentarían tras la obra, conservando su privacidad.
En este caso también ha sido muy importante la visualización de la propuesta en 3D. Ha facilitado la toma de decisiones por ambas partes, la definición de algunos detalles, el cumplimiento de las premisas y preferencias, así como elegir la mejor opción.
#arquitectura #apartamento #diseño #minicasa #miniespacios #vivienda #espacios #pareja #proyecto #propuesta #ideas #mosaarquitectos
#3D #BIM #visualizacion
Primera propuesta. Contentos los clientes y contentos nosotros de ir en el camino hacia su casa ideal. Seguimos trabajando en las propuestas para este proyecto atendiendo a todas las premisas de nuestros clientes y así cumplir con las espectativas.
Para nosotros es muy importante que las personas vean la propuesta completa. Con la mayor cantidad de detalles posible que puedan ayudar a reafirmar sus desiciones o nuestros consejos como profesionales.
Poco a poco vamos dándole forma a este precioso proyecto.
#arquitectura #diseño #propuesta #piscina #terraza #ideas #3D #BIM #proyecto
28 de junio, día internacional del #OrgulloLGTB.
¡En MOSA Arquitectos vemos el mundo en colorines!
Porque la #arquitectura es igual para todos, sin distinción de raza, género u orientación sexual. Año tras año sigue siendo necesario trabajar y luchar por un mundo más igualitario, donde prime el valor de la persona sobre su condición sexual.
www.mosaarquitectos.es
Hoy, 5 de junio, Día Internacional del Medio Ambiente. Desde MOSA Arquitectos nos sentimos comprometidos con el cuidado y buen trato a nuestro planeta, nuestra GRAN CASA. Por eso, trabajamos y nos esforzamos por mejorar las condiciones de sostenibilidad y eficiencia de la arquitectura que hacemos. Arquitectura que nos cuida a nosotros y al planeta.
www.mosaarquitectos.es
En #MOSAArquitectos nos gusta trabajar con las últimas tecnologías.
Herramientas como #BIMx de #graphisoft nos sirven para mostrar planos, plantas, secciones, y el modelo 3D.
Esta herramienta nos da la posibilidad de navegar por el #modelo3D y ver los detalles del espacio. Esto nos ayuda a resolver las inquietudes de nuestros clientes, saber si están de acuerdo con la idea y mejorar el proyecto a su gusto.
Gran jornada de ayer en Madrid con el equipo de @100x100madera
Nos ha encantado todo lo que hemos aprendido sobre arquitectura biopasiva, bioconstrucción y madera.
Regresamos con toda la motivación de seguir aprendiendo sobre este tipo de arquitectura y con muchas ganas de seguir trabajando y, sobre todo, de seguir colaborando con personas con las que compartimos filosofía.
Por último, hacer mención al día de hoy, día internacional de la Concienciación sobre el Ruido. Aspecto muy importante en la arquitectura, en las ciudades y sobre todo para la salud de las personas.
#mosaarquitectos #100x100madera #arquitectura #arquitecturabiopasiva #bioconstrucción #pasivhaus #casaspasivas #arquitecturapasiva #arquitectura
Hoy es el día de La Madre Tierra.🌍🌎🌏 Como seres humanos tenemos que asumir responsabilidad sobre los recursos naturales que consumimos.
Como profesionales, MOSA Arquitectos, seguimos un camino hacia la arquitectura sostenible, que reutiliza y recicla materiales, que aprovecha recursos como el sol y el viento a través de la arquitectura biopasiva y que es consciente de que la arquitectura es un medio para curar la Tierra.
El día de la Tierra debería celebrarse todos los días.🌍🌎🌏
¡Gran día para MOSA Arquitectos!
'La Plaza Nueva' ha sido seleccionada por los ciudadanos de Guía como PROPUESTA GANADORA en el proceso participativo 'Las plazas que sueñas, creas y vives'. E indudablemente es un sueño hecho realidad.
Un proyecto creado a partir de las inquietudes y propuestas ciudadanas, por y para el pueblo de Guía. Pequeños gestos, grandes soluciones. ¡Mil gracias a todos por su apoyo y participación!
Hola a todos!
La memoria de un espacio tan importante como es el Casco Histórico de Santa María de Guía ha sido un factor fundamental para llevar acabo nuestra propuesta para el Concurso de Las Plazas que Sueñas, Creas y Vives.
Hacemos realidad las propuestas de los vecinos en el Proceso Participativo, solucionamos los problemas que afectan al conjunto de plazas y aprovechamos en su totalidad el espacio, respetando el lugar y su forma.
Realizamos una intervención sencilla, consiguiendo el máximo con lo mínimo. Con solo unos gestos y una estructura que teje el espacio, que permite iluminar en la noche y dar sombra o proteger de la lluvia cuando sea necesario, conseguimos que todo el espacio se abra y se conecte, pasando de ser varias plazas a ser una plaza única: La Plaza Nueva. 519J685M
Jennifer Moreno Sosa y Moisés Santiago Benítez, MOSA Arquitectos.
Hola a todos,
Ya se pueden ver en la web http://www.guiaparticipa.es/ los proyectos finalistas del Concurso "Las Plazas que Sueñas, Creas y Vives" Pueden votar los mayores de 16 años residentes en Guía. Esperamos que su voto sea a favor de nuestro Proyecto 591J685M "La Plaza Nueva" al que hemos puesto toda nuestra ilusión para que Guía tenga la plaza que se merece.
Para votar acceder al siguiente enlace: http://cv.santamariadeguia.es:8085/concursoplazas/concurso.php
Rellenar los datos y seguir las instrucciones, es muy sencillo.
Un saludo y muchas gracias a todos!!
Los 4 paneles de La Plaza Nueva de Santa María de Guía del equipo 591J685M, MOSA Arquitectos.
Mañana podrán visitar La Casa de La Cultura de Santa María de Guía para ver expuestos los proyectos finalistas del Concurso "Las Plazas que Sueñas Creas y Vives"
Muchas gracias a todos los que asistieron ayer a la exposición de los proyectos finalistas. Los que no pudieron acudir, próximamente se colgará la exposición en youtube y también será proyectada en la sala de exposiciones junto con los paneles.
¡FINALISTAS!
MOSA Arquitectos les INVITA a la EXPOSICIÓN de las tres propuestas finalistas candidatas a ganar el CONCURSO DE IDEAS para la remodelación de las plazas del Conjunto Histórico de Santa María de Guía. Tendrá lugar el próximo sábado, 9 a las 18.00 horas, en la Casa de la Cultura de Guía. ¡VEN Y ACOMPÁÑANOS! 😁😁
Ver más
Nuestros servicios, tus beneficios
Certificados | Informes
Realizamos todo tipo de documentación para ayudarte con las tramitaciones técnicas que necesites ante organismos y administraciones.
Legalización
Si has comenzado alguna obra, ya sea obra nueva o reforma, sin la licencia correspondiente, o si has terminado y necesitas legalizar la construcción, nosotros podemos ayudarte.
Proyectos
Realizamos, gestionamos y desarrollamos proyectos adaptados. Trabajamos para dar diseños exclusivos y únicos.
Mediciones | Estudios | Presupuestos
Si necesitas valorar alguna idea antes de darle forma, nosotros podemos medir, estudiar y calcular el alcance de la misma.
Dirección de obra
Prestamos servicios de dirección de obra tanto para particulares como para empresas y colaboradores. Acompañando en todo el proceso o haciendo visitas puntuales.
Servicios Colaborativos
Gracias al BIM y nuestra formación en ello y otras materias, ofrecemos servicios relacionados con la metodología BIM y con el cálculo de estructuras a otros compañeros y empresas colaboradoras.

Metodología
Metodología BIM
Visualización 3D y 4D
Eficiencia
Disponibilidad
Compromiso y confianza
Claridad
Equipo resolutivo
Gestión y organización
Iniciativa
Optimización
Ahorra Tiempo y dinero
Diseño de espacios con máximo aprovechamiento.
Adaptación a circunstancias.
Minimizar errores
Grandes resultados con mínimos recursos
Singularidad
Tu vivienda es única como tú.
Proyectos únicos y originales.
Diseño creativo y adaptado.
Varias Propuestas, tú eliges.
Tu Hogar Crece Contigo.
Proyectos por fases.
Tu proyecto en tu móvil.
¡Haz realidad tu vivienda!
RESUELVE TUS INQUIETUDES
¿Tienes alguna idea
y necesitas darle forma? Nosotros te ayudamos a verlo
antes de tirarte a la piscina.
¿Sueñas
con darle un giro a tu espacio favorito con un
presupuesto concreto?
Es posible.
En el diseño como en el mercado hay miles de posibilidades que pueden sorprenderte.
¿Quieres
aprovechar al máximo los espacios?
Acertar
es sencillo cuando puedes
ver todas las posibilidades
antes de actuar.
Tú decides
cómo y cuándo. Nos adaptamos a tu presupuesto y tus posibilidades, estudiando la viabilidad
de tu idea para potenciarla y obtener el mejor resultado posible.
Planificamos y gestionamos
todo tu proyecto desde el principio para evitar errores y contratiempos durante la construcción o sorpresas a fin de mes. Si lo deseas, también podemos plantear un desarrollo por fases, para que tú seas quien decida en qué momento hacer la obra.
Te ayudamos
a comprender mejor todo el proceso gracias a la metodología BIM, que nos permite monitorizar la construcción desde el inicio hasta el final de la obra, incluyendo el ciclo de vida del edificio. Podemos adelantarnos a los imprevistos que puedan suceder durante la ejecución, aún sin haber comenzado la obra, lo que te permitirá ahorrar en tiempo y coste.
Desde la escala más pequeña (decoración, muebles, diseño de interior) a la más grande (edificios y espacios exteriores). Pero, sobre todo, puedes contar con nosotros
para reformas, rehabilitaciones, obra nueva (viviendas
unifamiliares y plurifamiliares) y cambios de uso o apertura de negocio.
Si tiene alguna idea y no sabe como hacerla realidad, si quiere cumplir su sueño y no sabe por donde empezar, no dude en contactar con nosotros.
Un poquito más sobre nosotros:
Estamos en constante aprendizaje, profundizando siempre en los temas que nos interesan, para así abordar con mayor facilidad los problemas y conseguir el resultado de mayor calidad. Somos dos personas que compartimos los mismos valores y principios con respecto a la arquitectura. Nos complementamos y somos capaces de abordar las distintas escalas de la arquitectura, gracias a la experiencia, el conocimiento
(investigación y estudio) y, por supuesto, la vocación.
La arquitectura nos apasiona,
y abordamos cada proyecto con todo el compromiso
que se merece. Porque queremos dar las mejores soluciones con pequeños gestos.
Adaptándonos a las posibilidades y a la economía
de cada idea para hacerla realidad. Todo puede ser posible como viable.
Nuestro objetivo
es cumplir con las exigencias y demandas de nuestros clientes, pero, sobre todo, que el resultado final supere todas las expectativas.
Pequeños gestos, grandes soluciones

Moisés Santiago Benítez
Arquitecto graduado en la ULPGC
Experiencia propia en proyectos propios
y para la administración de Obra Nueva, Reforma y Rehabilitación
como proyectista, Gestor y Coordinador de Agentes y Control de Obra, Director de Obra.
Especializado en Urbanismo, Patrimonio, Gestión de Proyectos y Obras, Patología de la Edificiación
Coordinación, comunicación y gestión
Dirección de obra.
Project Manager
¿Necesitas presupuesto?
Contáctanos
+34 660 669 286
info@mosaarquitectos.es
Visítanos
Calle Lomo Guillén nº 41, Edificio Hermes, Oficina 13A (acceso desde Plaza de La Guardia Civil)









































































































































































